Quadrilocale in vendita a Verona

Rif. P.1 N. 4_IMM_copia

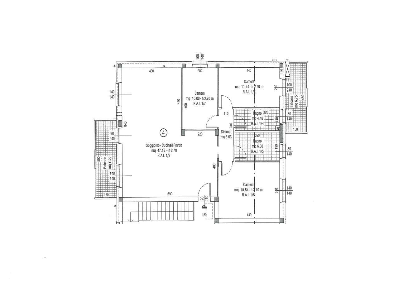
INCREDIBILE!!! Castel d'Azzano nella primissima parte del paese, comodo ad tangenziali, autostrada e centro città, proponiamo in **vendita esclusiva** un **ampio quadrilocale di nuova costruzione**, situato al **primo piano su un unico livello**, pensato per offrire comfort, efficienza energetica e qualità abitativa ai massimi livelli.Consegna Settembre 2026!!!

Composizione interna:

- Zona soggiorno e cucina open space luminosa e accogliente
- Tre camere da letto, ideali per famiglie o per chi desidera uno studio o una stanza ospiti
- Due bagni moderni con finiture di alta qualità
- Ampio garage doppio in lunghezza al piano scantinato, comodo per due auto e spazio aggiuntivo

Caratteristiche principali:

- Classe energetica A4: massimo risparmio energetico e comfort termico/acustico
- Finiture di pregio personalizzabili: scegli tu i materiali per rendere la casa davvero tua
- Spazi ben distribuiti e ambienti pensati per la vita quotidiana
Consegna prevista per estate 2026: tempo ideale per pianificare il tuo futuro!

Posizione strategica: zona centrale e ben servita, perfetta per famiglie con comodità dei collegamenti e dei servizi.

Questa soluzione rappresenta il connubio perfetto tra design, efficienza energetica e funzionalità; con la possibilità di personalizzarlo come meglio credete. Contattaci per maggiori informazioni, planimetrie e appuntamenti in cantiere!!! IMMOBILIARE CASTELLO tel: 045 / 8521438 mobile 347/6117161 Paolo
Immobiliare Castello e-mail: immobiliarecastellocda@gmail.com
Agenzia di Castel d'Azzano (VR) - Via P. Mascagni, 102.
CLASSE ENERGETICA:

Richiesta: 330.000

Galleria fotografica

Clicca sulle foto per vederle ingrandite
Richiesta informazioni