Villa A Schiera in vendita a Cerea

Rif. V003679

In tranquilla zona residenziale di Cerea, proponiamo splendida villetta a schiera ad angolo, caratterizzata da ampi spazi, ottima distribuzione interna e un bellissimo giardino che abbraccia la casa su tre lati, ideale per chi cerca comfort e indipendenza.
TENUTA BENISSIMO!!!

Composizione:

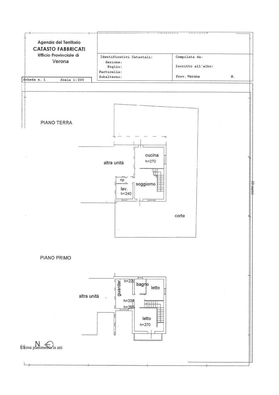
- Piano terra: accogliente soggiorno, cucina funzionale e bagno di servizio, perfetti per la vita quotidiana e per ricevere ospiti

- Piano primo: tre camere da letto, di cui una con balcone, e bagno finestrato

- Garage all'americana, comodo e pratico

- Tettoia con due posti auto, un vero plus

- Giardino privato su tre lati, ideale per momenti di relax, pranzi all'aperto o per chi ama il verde

La soluzione si distingue per la luminosità, la versatilità degli spazi e l'ottima vivibilità sia interna che esterna, rendendola perfetta per famiglie o per chi desidera una casa indipendente senza rinunciare alla comodità dei servizi.

Posizione strategica, in contesto tranquillo ma comodo a scuole, negozi e principali collegamenti.

Una casa pronta da vivere, dove comfort e privacy si incontrano.
Contattaci per maggiori informazioni o per fissare una visita!

IMMOBILIARE CASTELLO - tel: 045 / 8521438 mobile 393/9119191 Cristian
Immobiliare Castello e-mail: immobiliarecastellocda@gmail.com
Agenzia di Castel d'Azzano (VR) - Via P. Mascagni, 102
CLASSE ENERGETICA: In fase di valutazione

Richiesta: 295.000

Galleria fotografica

Clicca sulle foto per vederle ingrandite
Richiesta informazioni