Quadrilocale in vendita a Rosignano Marittimo

Rif. 1798

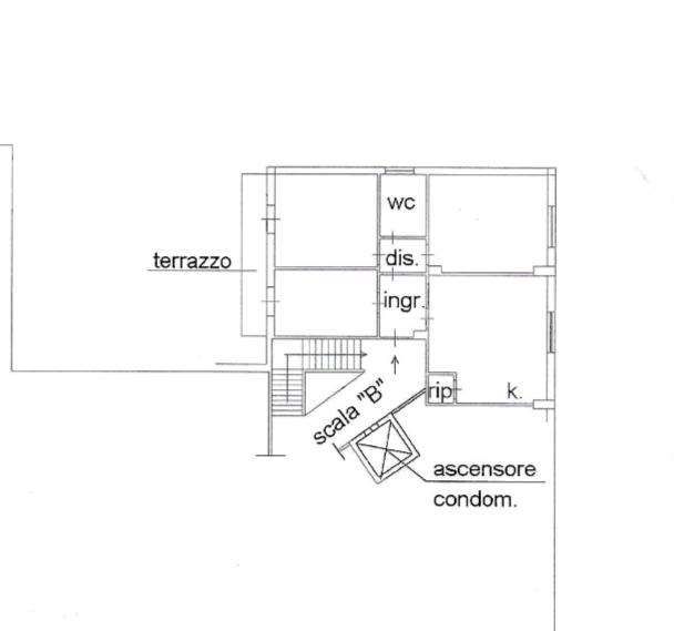
ROSIGNANO SOLVAY al confine con la frazione di CASTIGLIONCELLO, proponiamo appartamento ristrutturato in contesto di condominio, composto da 4 locali completamente ristrutturato. L'immobile collocato al quarto piano servito da ascensore si trova così diviso: ingresso, soggiorno con cucina, 2 camere matrimoniali, cameretta con balcone e bagno. Posto auto privato. Basse spese condominiali. Richiesta euro 165.000. Classe energetica G. Indice prestazione energetica KWh/m2a 262,30. AFFARE! - Riferimento annuncio 1798
Per informazioni e visite telefonare ai seguenti numeri 3355343529 0396363799 oppure visitare il nostro sito www.immobiliareitalinvest.it INDIRIZZI NOSTRI UFFICI: Monza (MB) Via Don Luigi Sturzo, 7 Cecina (LI) via S. Venier 5. L' Agenzia Immobiliare Italinvest mira ad assicurare alla propria clientela sicurezza nel vendere, tranquillità e trasparenza nell' acquistare. Vi accompagnerà attraverso tutte le fasi della compravendita e gestione immobiliare, offrendoVi un pacchetto di servizi professionale quali: Servizio fotografico, Analisi dei documenti e stima del valore dell'immobile - Promozione dell'immobile sul mercato attraverso portali immobiliari - Visita all'immobile e consegna di materiale tecnico - Accertamenti urbanistici, catastali e ipotecari sull'immobile - Proposta di acquisto e/o contratto preliminare di compravendita e relativa registrazione ai sensi di Legge - Coordinamento dei professionisti che dovessero partecipare al buon esito della compravendita (tecnici, notai e commercialisti) - Consegna di tutti i documenti necessari per la stipula del rogito notarile al notaio di fiducia dell'acquirente - Presenza al rogito notarile.

CLASSE ENERGETICA: G 262,3 kWh/m3 a

Richiesta: 165.000

Galleria fotografica

Clicca sulle foto per vederle ingrandite
Richiesta informazioni