Appartamento In Villa in vendita a Capoliveri

Rif. Rif. 230

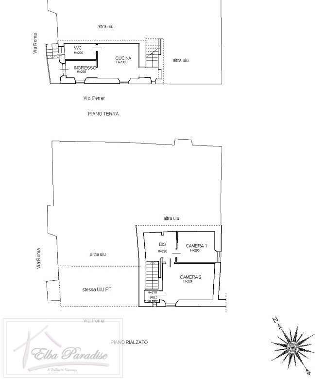
Nella via più caratteristica del centro storico di Capoliveri, incastonato nei vicoletti del borgo, vendiamo appartamento con ingresso indipendente, disposto su due piani, composto da: soggiorno con cucina a vista, servizi finestrati con doccia, disimpegno, scala che porta alla zona notte, dove troviamo 2 camere matrimoniali e ripostiglio che puó essere adibito a secondo servizio.
L'immobile necessita di alcuni lavori di ristrutturazione.
Ottimo rapporto qualità/prezzo.

* Ideale per: Casa Vacanze, Investimento, Residenti

CAPOLIVERI
Nasce su una collina in posizione strategica e di controllo dell'orizzonte a Sud ed Ovest. Caratteristico borgo medioevale fortificato, con particolari vicoli ad archi che vanno abbracciando la bellezza della piazza, punto di ritrovo per villeggianti stranieri e paesani. Capoliveri è il 2° paese più ricco d'Italia, famoso per aver creato Marina di Capoliveri, insenatura sul golfo di mola che ogni anno ospita variegate barche e yacht da tutta Europa. Luoghi da non perdere sono: il Santuario della Madonna delle Grazie ed il Santuario della Madonna della Neve. Le principali spiagge che offre sono: Zuccale, Barabarca, Gli Stecchi, Madonna delle Grazie, Morcone, Pareti, Innamorata, Punta Calamita, Remaiolo, Calanova, Ferrato, Malpasso, Straccoligno, Naregno, Lacona, Laconella, Margidore, Acquarilli, Norsi, Felciaio, Lido.
Elbaparadise Immobiliare mette a disposizione per la compravendita del tuo immobile una vasta banca dati aggiornata in tempo reale con clienti selezionati ed interessati seriamente per prezzo e tipologia, senza perdite di tempo! Viene effettuata una campagna pubblicitaria con annunci mirati, inseriti in spazi pubblicitari pubblicati su giornali di settore (es: Secondamano, Il sole 24 ore, Il Tirreno, Viola, Il Firenze Gratis, La Repubblica, Travel etc..), sui più grandi portali italiani (es: Immobiliare.it, Casa.it, Case24, E-Bay etc..) , Cinema e TV (Canale 670 del digitale terrestre, TeleNews), con le nostre brochure cartacee recapitate c/o posta ed aggiornate annualmente, infine sulla rete di circa 900 agenzie immobiliari italiane ed europee che collaborano con noi in trasparenza e serietà, creando così la possibilità reale di vendere il suo immobile in tempi celeri. solo con noi! * Per questi e tanti altri motivi, affidati a noi e sarai tu, il prossimo a farci la migliore pubblicità, con soddisfazione e semplicità.

*Elba Paradise Immobiliare - Via R. Fucini 14 - 57037 Portoferraio (LI) *Tel/Fax: +39.0565.919819 - *Mobile: 380.6310004 - *Mobile: 349.0959724 *E-mail: info@elbaparadiseimmobiliare.it
*Sito Web: www.elbaparadiseimmobiliare.it
CLASSE ENERGETICA: G

Richiesta: 130.000

Galleria fotografica

Clicca sulle foto per vederle ingrandite
Richiesta informazioni