Villa in vendita a Porto Azzurro

Rif. Rif. 113

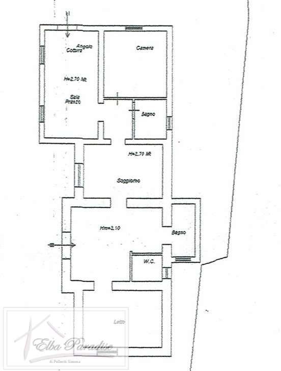
Nella prima campagna di Porto Azzurro, immersa nel verde, in posizione tranquilla soleggiata e panoramica con vista mare, vendesi villetta indipendente di circa 135 mq, disposta su unico livello. Internamente si compone da: soggiorno con angolo cottura con divano letto, camera da letto matrimoniale e servizi, altra cucina abitabile, due camere da letto matrimoniali e doppi servizi. Attualmente l'immobile è diviso in due unità indipendenti con ingressi separati. Fanno parte della proprietà 9.000 mq di terreno, un tempo coltivato a vigneto ed orti. La casa è circondata da pini marittimi e bassa vegetazione. Ampi spazi esterni attrezzati per vivere all'esterno con due zone barbecue e relax, donano alla proprietà un sapore caratteristico di vacanza.
Completano la proprietà 4 posti auto coperti e docce esterne.
L'oggetto, in ottime condizioni sia interne che esterne, rappresenta un'ottima soluzione sia per un'abitazione residenziale da vivere tutto l'anno, sia ad uso turistico e/o investimento, da mettere a reddito.

* Ideale per: Residenti, Investimento, Casa vacanze.

PORTO AZZURRO:
Porto Longone è stato il suo nome fino al 1945 per la lunghezza dell'insenatura da cui nasce; dopo la guerra, con la perdita del territorio di Capoliveri ad inizio secolo, assunse la denominazione di Porto Azzurro. Punto forte d'interesse sono: Forte S. Giacomo, Forte Focardo, Laghetto di Terranera, Relitto di Punta Cera ed il Santuario di Monserrato. Un gran ritrovo per residenti e giovani turisti è la particolare piazza fronte-mare con tonalità pastello, la seconda più grande d'Italia, spesso animata da una varietà di eventi ed attrazioni. Altra particolarità sono le vie del centro storico, ricche di negozi , bancarelle d'artigianato, ristoranti, pub e lounge-bar. Le spiagge principali che offre sono: Barbarossa, Reale, Terranera, Mola (Dog-Beach), La Pianotta e La Rossa.
Elbaparadise Immobiliare mette a disposizione per la compravendita del tuo immobile una vasta banca dati aggiornata in tempo reale con clienti selezionati ed interessati seriamente per prezzo e tipologia, senza perdite di tempo! Viene effettuata una campagna pubblicitaria con annunci mirati, inseriti in spazi pubblicitari pubblicati su giornali di settore (es: Secondamano, Il sole 24 ore, Il Tirreno, Viola, Il Firenze Gratis, La Repubblica, Travel etc..), sui più grandi portali italiani (es: Immobiliare.it, Casa.it, Case24, E-Bay etc..) , Cinema e TV (Canale 670 del digitale terrestre, TeleNews), con le nostre brochure cartacee recapitate c/o posta ed aggiornate annualmente, infine sulla rete di circa 900 agenzie immobiliari italiane ed europee che collaborano con noi in trasparenza e serietà , creando così la possibilità reale di vendere il suo immobile in tempi celeri. solo con noi! * Per questi e tanti altri motivi, affidati a noi.. e sarai tu, il prossimo a farci la migliore pubblicità, con soddisfazione e semplicità.

*Elba Paradise Immobiliare - Via R. Fucini, 14 - 57037 Portoferraio (LI)
*Tel/Fax: +39.0565.919819 - *Mobile: 349.0959724 - *Mobile: 380.6310004
*E-mail: info@elbaparadiseimmobiliare.it
*Sito web: www.elbaparadiseimmobiliare.it
CLASSE ENERGETICA: G

Richiesta: 390.000

Galleria fotografica

Clicca sulle foto per vederle ingrandite
Richiesta informazioni