Quadrilocale in vendita a Arma Di Taggia

Rif. 44

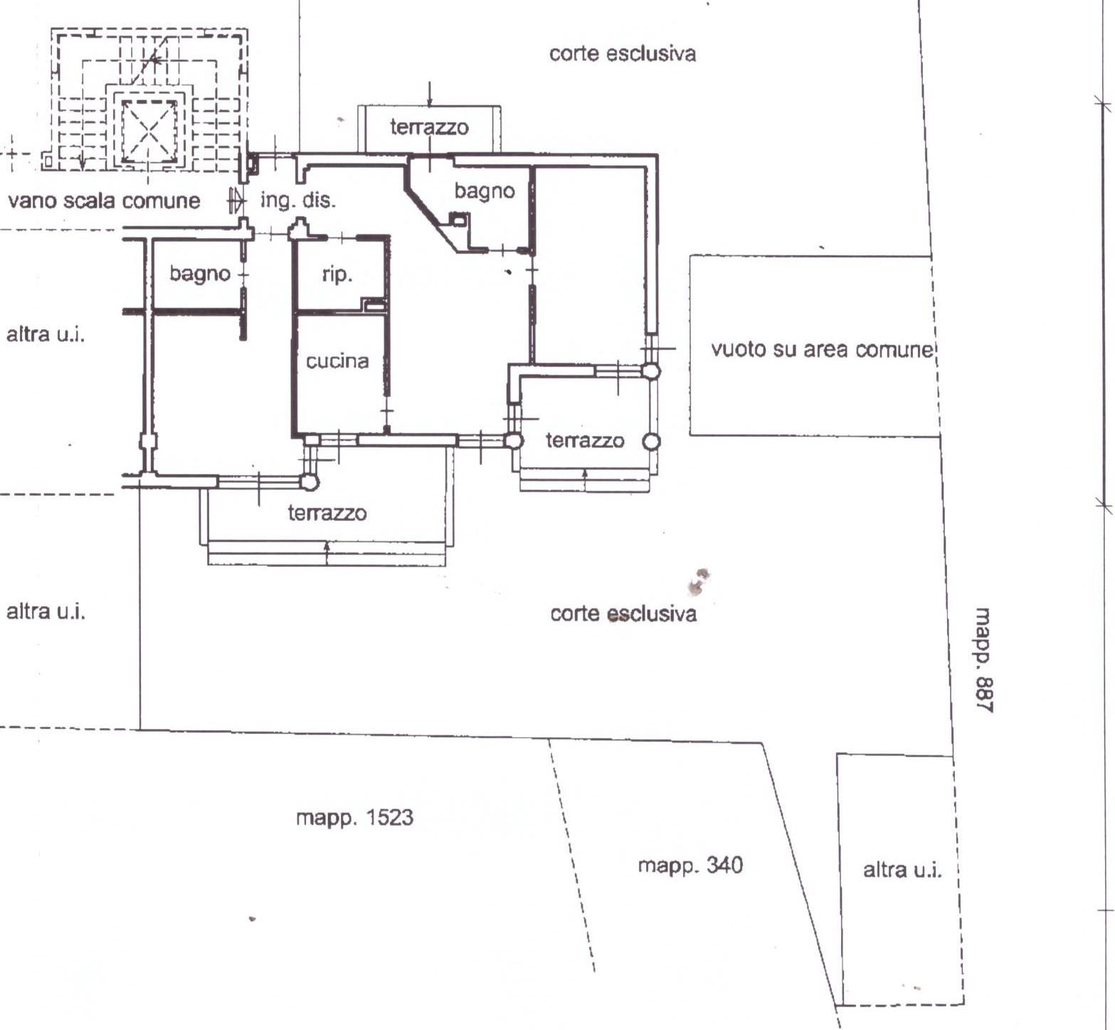
In zona Levā, comodo a tutti i servizi alloggio posto al piano terra di una palazzina di recente costruzione. L'ampia metratura č composta da soggiorno, tinello, due camere, doppi servizi e comodo ripostiglio.
L'accesso dal giardino consente di parcheggiare comodamente un auto nella proprietā non limitando l'uso della corte esterna che si presenta in parte piastrellata.

APE: In fase di richiesta

Richiesta: 330.000

Galleria fotografica

Clicca sulle foto per vederle ingrandite
Richiesta informazioni